Skip to content
Home
About
Services
New Home Construction
Dickinson Modular Homes
Commercial
Projects
Contact Us
Contact Us
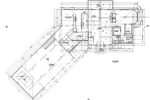
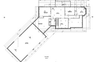
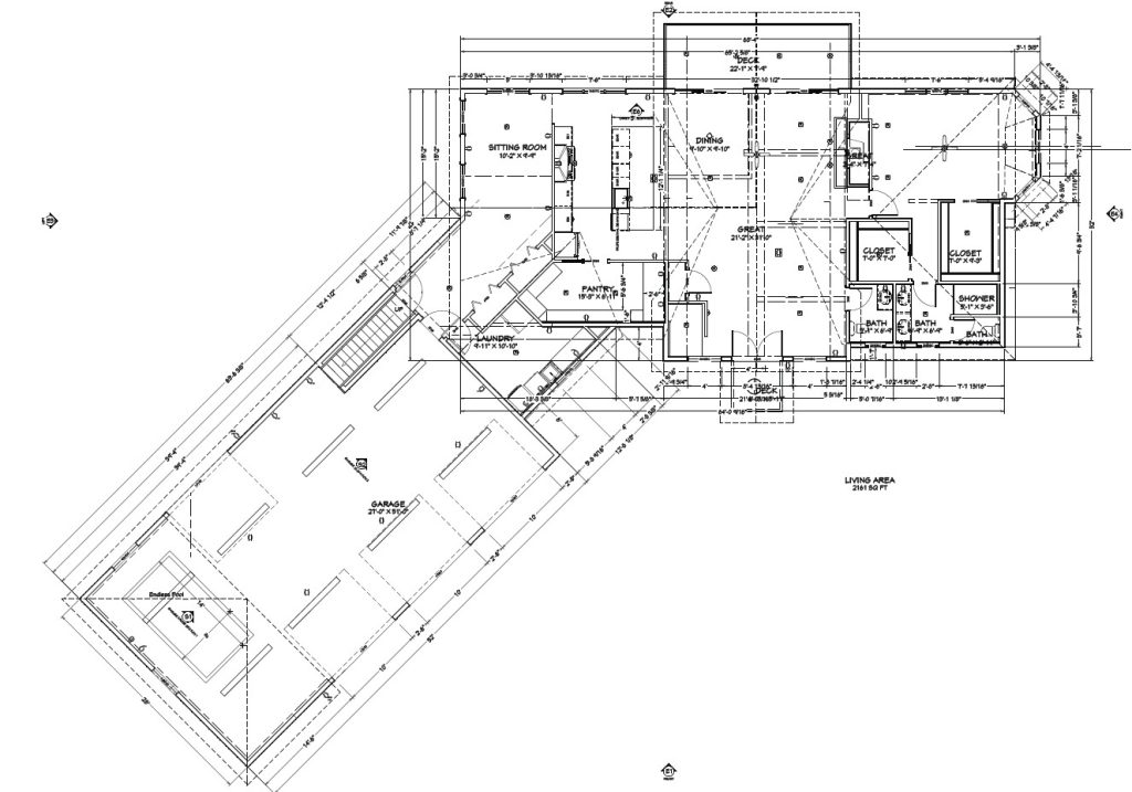
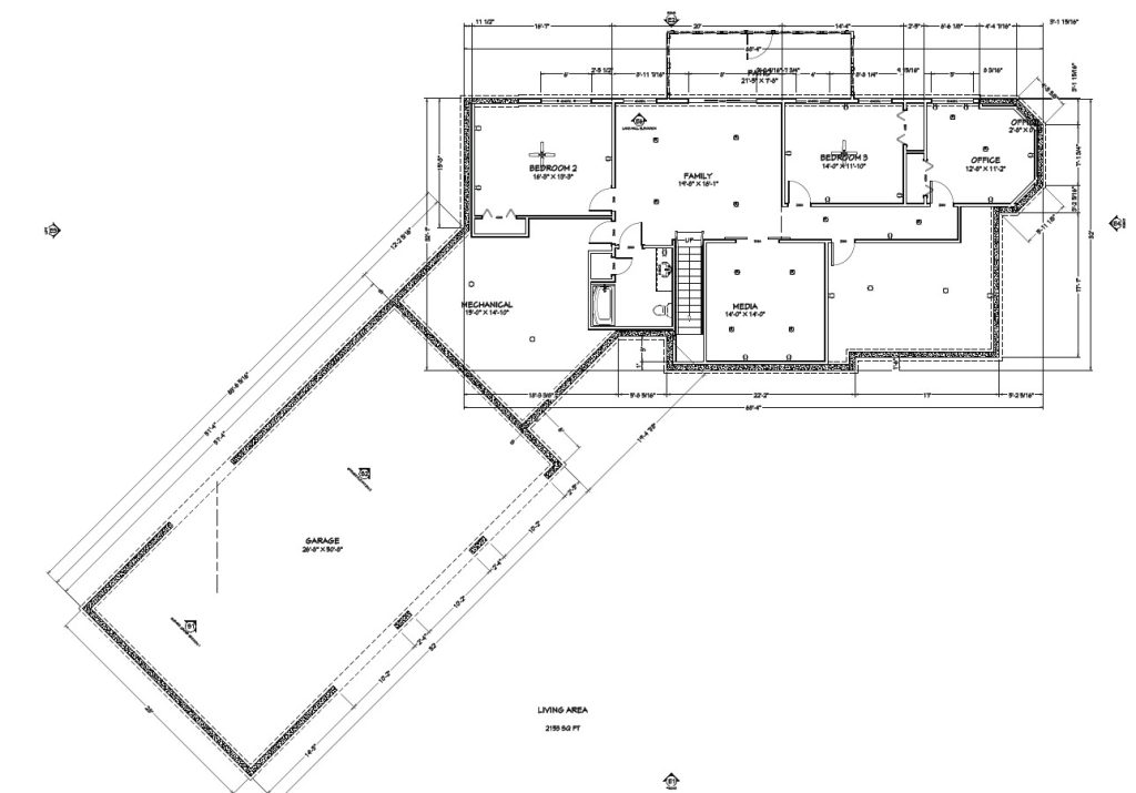
Hickory Heights
Project
Captures the magnificent, elevated view.
A lighter color palette to make it feel warmer and highlight it in its natural setting.
We
do not
sell existing floorplans. Each house is a custom creation. The floor plans are only a guide.
Scroll To Top